|
<< Click to Display Table of Contents >> Installationsplan V17 Standard ändern |
![]() ![]()
|
Sämtliche Installationssymbole haben einen durch planTEK definierten Standard. Dieser bestimmt neben der Bezeichnung wie groß die Symbole sind, wie sie vermaßt werden, ob sie in 3D sichtbar sind und vieles mehr.
Durch Rechtsklick oder Doppelklick in eines der Symbole in der linken Liste aller Symbole kann dieser planTEK - Standard überlaufen werden:
Beispiel Abluftkanal E/A:

Hier wurde die Bezeichnung (Abluftkanal 20x20) und die Art der Vermaßung gegenüber dem planTEK - Standard geändert.
Die Gruppen, die geändert wurden, werden durch das Symbol
gekennzeichnet.
Beispiel Abluftkanal E/A:

Hier wurden die Symbolgröße und die Linieneinstellungen geändert.
Durch Klick auf den jeweiligen Button "Standard löschen" werden die Änderungen zurückgesetzt und die planTEK - Standard - Einstellungen wieder geladen.
Die gegenüber dem planTEK - Standard veränderten Symbole werden in der Liste der Installationssymbole mit einem gekennzeichnet.
Außerdem werden die Bezeichnungen (hier wird immer der planTEK - Standard angezeigt) in rot geschrieben.
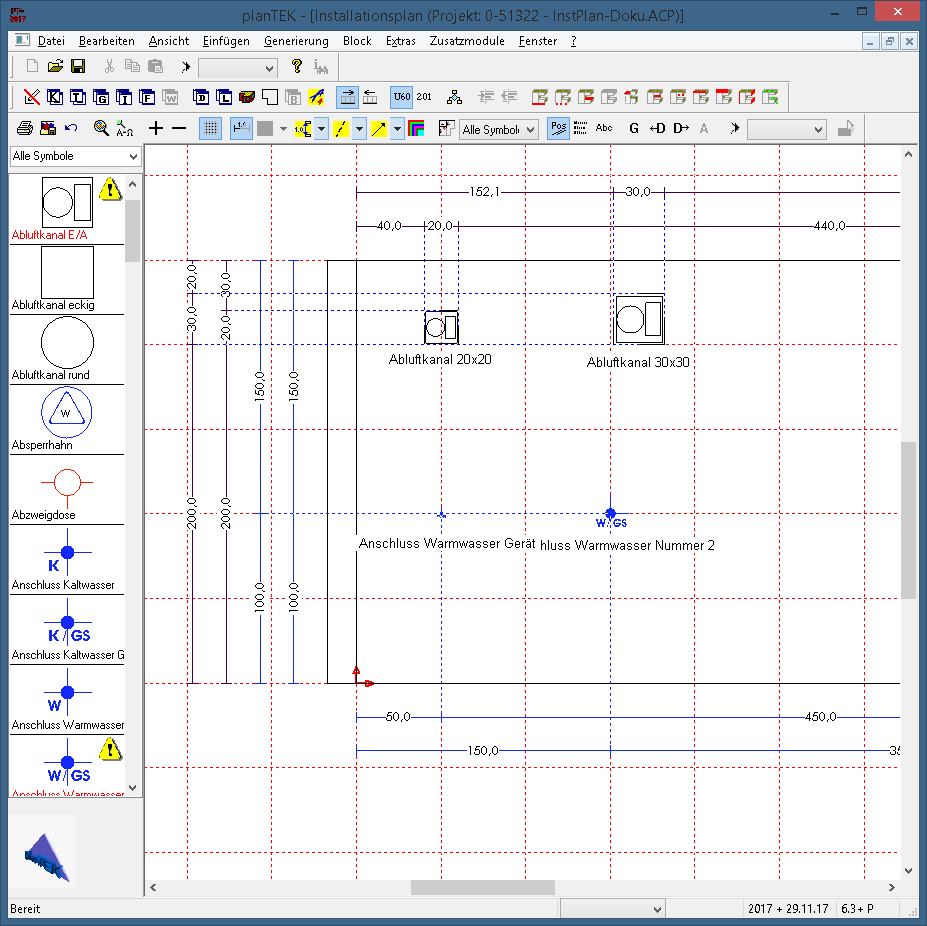
Der Installationsplan sieht dann z.B. so aus:

Die zwei vom Standard abweichenden Symbole sind in der Liste markiert, der geänderte Text wird bei den verplanten Symbolen dargestellt.
Durch Doppelklick in die Einzelnen Symbole erhält man folgende Masken:
Abluftkanal 20x20:
Es wird der Standard aus der Liste verwendet

Abluftkanal 30x30:
Hier wurde die Bezeichnung und das Maß überlaufen

Anschluss Warmwasser Gerät
Es wird der Standard aus der Liste verwendet
Anschluss Warmwasser Gerät
Hier wurde die Bezeichnung und das Maß überlaufen und die Symbolgröße geändert

Die auf Positionsebene (d.h. nur für dieses verplante Symbol) veränderten Einstellungen sind durch ein
gekennzeichnet, die vom planTEK - Standard abweichenden Einstellungen durch ein
.
Sobald Sie in dieser Maske in eine Box klicken oder einen Text verändern, wird der Haken in "übernehmen..." der entsprechenden Gruppe automatisch gesetzt und diese Einstellungen bei Klick in OK für dieses Symbol übernommen.
Wenn der Haken bei übernehmen herausgenommen wird, wird die entsprechende für dieses Symbol getroffene Spezialeinstellung gelöscht und der Standard wieder verwendet.
Bei Rechtsklick in ein Symbol geht ein Menü auf.

Hier kann man das ausgewählte, alle verplanten oder alle sichtbaren Installationssymbole auf den Standard zurücksetzen.
Mit "Spezialeinstellungen für alle Symbole zurücksetzen" werden alle in der linken Liste als Standard eingestellten Einstellungen zurückgesetzt.