<< Click to Display Table of Contents >>
Objekt- und Texturrichtung anzeigen
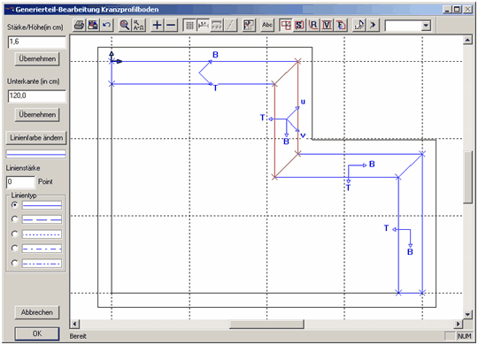
Die Optionen für "Masse an/aus" (rechte Maustaste auf das Symbol) sind in den Fenstern zur Generierteile-Bearbeitung für Arbeitsplatten und Kranzprofilböden erweitert worden: Für diese Teile ist es möglich, die Objektrichtung und die Texturrichtung in Form zweier kleiner Pfeile anzuzeigen. ObjektrichtungDer Pfeil mit der Beschriftung "B" bestimmt dabei die Richtung, die zur Berechnung der Länge herangezogen wird, der senkrecht dazu stehende Pfeil , der mit "T" beschriftet ist, bestimmt die Tiefe des Objekts.
TexturrichtungDie Texturrichtung wird nur dann angezeigt, wenn sie von der Objekt-Richtung abweicht oder aber die Objekt-Richtung nicht angezeigt wird. Die Texturrichtung ist absolut unerheblich für die Maß- und damit die Preisberechnung. Sie bestimmt lediglich den Verlauf der Maserung auf dem Objekt.
|
Objekt- und Texturrichtung ändern
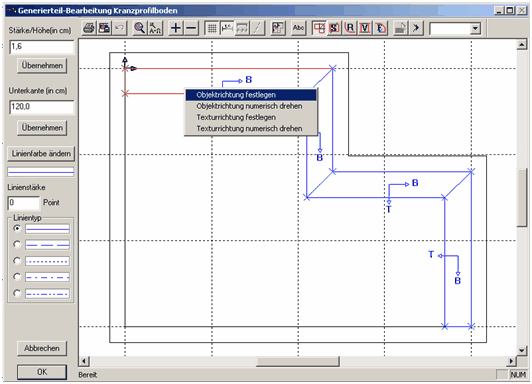
Bei Klick mit der rechten Maustaste in eine Arbeitsplatte oder einen Kranzprofilboden im Fenster "Generierteile-Bearbeitung" erscheint, wenn die Objekt- oder Texturrichtung angezeigt wird (siehe oben), ein Kontextmenu bei dem ausgewählten Teil, das gleichzeitig selektiert wird:
Objektrichtung numerisch drehenDie im vorigen Kapitel beschriebenen Objekt- bzw. Texturrichtungen können damit festgelegt bzw. geändert werden. Bei Auswahl von "Objektrichtung numerisch drehen" bzw. "Texturrichtung numerisch drehen" erscheint ein Dialog, der zur Eingabe eines Winkels auffordert: Nach Eingabe eines Winkels ≠ 0 wird die entsprechende Richtung gedreht und sofort neu dargestellt. Wenn nur die Objekt-Richtung geändert wird, ohne dass die Textur-Richtung speziell festgelegt/geändert wurde, ist auch nach der Änderung die Textur-Richtung mit der Objekt-Richtung identisch.
Objektrichtung festlegenDurch Klick auf eine Linie (oder in die Nähe einer Linie) des selektierten Objekts wird die Längsrichtung ("B" bzw. "u") auf die durch diese Linie festgelegt Richtung gesetzt.
Vorsicht Die "Objekt-Richtung" bestimmt die Richtung, aus der das Längen und Tiefenmaß des Teiles bestimmt wird. Sie ist maßgeblich für die Preisberechnung!
Dieser kann nur mit "Abbrechen" oder "OK" verlassen werden. Bei Arbeitsplatten und Kranzprofilböden kann die Unterkante und die Stärke eingegeben werden, bei Sockeln die Höhe. Die Werte in den Eingabefeldern werden gefüllt, wenn eine Arbeitsplatte / ein Kranzprofilboden ausgewählt ist. Bei Klick in den Button "Übernehmen" werden die entsprechenden Werte auf die gerade selektierten Platten / Böden übertragen. Als zusätzliche Funktionalität ist auch hier die Möglichkeit geschaffen worden, beliebige freie Texte einzugeben. Außerdem kann eine Ansicht gespeichert und wieder aufgerufen werden. Siehe dazu die Beschreibung zu „Ansichten speichern / aufrufen“.
|