|
<< Click to Display Table of Contents >> Schraffierte Wände |
![]() ![]()
|
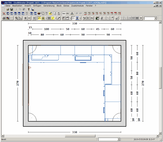
Ab Version 10 sind schraffierte Wände im planTEK Grafikfenster verfügbar. Zu aktivieren ist diese Funktion in den Optionen zur Sichtbarkeit. Button (Elemente ausblenden)

