|
<< Click to Display Table of Contents >> Legende |
![]() ![]()
|
Version 11

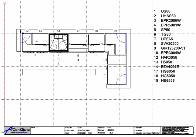
Nach Klick in den "Legende" Button kann man (analog zum Installationsplan) ein Rechteck aufziehen, in das alle im Moment sichtbaren Elemente in Form einer Liste geschrieben werden.


Diese Liste wird bei jedem Zeichnen aktualisiert.
Im Bezug auf Schriftart / Stil / Farbe / Größe wird der Legendentext wie ein "freier Text" behandelt, d.h. nach Anklicken kann das Rechteck verändert werden.
Bei "Rechtsklick" in die Legende geht (wenn diese der einzige selektierte freie Text) ist, ein Menu auf, in dem man weitgehend dieselben Möglichkeiten hat wie bei freien Texten.

Die Legende im Grafik-Fenster kann mehrspaltig ausgegeben werden:
Sie könne angeben, ab wie viel Zeilen eine neue Spalte begonnen wird.
Bei "optimale Spaltenzahl automatisch" wird die Spaltenzahl anhand des vorgegebenen Rechtecks so bestimmt, dass eine möglichst große Schrift verwendet wird.
"Bei Batchausgabe neue Seite ab" - hier können Sie angeben, ab welcher Spaltenzahl der Legende die Legende in eine eigene Datei geschrieben wird.
![]()

Mit einem „Rechtsklick“ auf die Legende erhalten Sie die erweiterten Optionen der Typenlegende. Es ist nun möglich einen Richtwert vorzugeben ab dem ein Zeilenumbruch erzwungen wird „in Bezug auf die Anzahl der verplanten Artikel“. Dabei werden die gelisteten Typen allerdings gleichmäßig verteilt, damit die Ausgabe homogen aussieht.

Es kann mit der Option "mit nicht-kommerziellen Positionen" ausgewählt werden, ob grafische Artikel, die nicht auf dem Angebot / Auftrag auftauchen, mit in der Legende aufgeführt werden sollen.
