|
<< Click to Display Table of Contents >> Manuell Positionieren / IPS - Intelligent Positioning System |
![]() ![]()
|
Das IPS erlaubt nun zusätzlich eine spielend leichte Positionierung von Elementen direkt im Grafikfenster.
Nach der Aktivierung in den Optionen über das Menü „Extras " Optionen " Positionieroptionen...“

können Sie mit der „Single Klick“ Technologie Objekte an anderen verplanten Objekten ausrichten.
Mit einem „Linksklick“ auf das „MP Symbol“ aktivieren Sie das IPS um das zuvor ausgewählte und zu positionierende Objekte auszurichten.
Jetzt brauchen Sie nur noch mit einem „Linksklick“ an die Seite des Objektes tippen an dem Ihr Element ausgerichtet werden soll.
Wenn das zu positionierende Objekt sich an zwei überlagernden Elementen ausrichten soll, so wählt man mit einem „Rechtsklick“ zuvor das Betreffende aus.

Über die Funktion IPS (Intelligentes Positionier System) kann jedes neu eingegebene Element direkt nach der Eingabe mit der Maus an vorhandenen Wänden und bereits zuvor geplanten Elementen positioniert werden.
Hinweis: Beim ersten zu verplanenden Element erscheint zuerst der Dialog Wandauswahl Und erst anschließend greift die Funktion IPS.
Vorgehensweise bei Positionierung an eine Wand: Typbezeichnung eingeben, vorhandene Wand mit der Maus anklicken und anschließend mit der Maus vor die Innenwand klicken.
Bezogen auf eine Wand kann man kann die Positionierung links, mittig oder rechts durchführen.
Hinweis: Die Wand, an die positioniert werden soll, muss zuvor mit der Maus aktiviert
(angeklickt) werden und anschließend wird mit Mausklick direkt vor die Wand bestimmt,
wo das Element platziert wird. (Abstand des Mausklicks vor die Wand max. 5 mm).
Vorgehensweise bei Positionierung an ein bereits vorhandenes Element: Typbezeichnung eingeben, vorhandenes Element mit der Maus anklicken und anschließend mit der Maus an die Stelle klicken, wo das neue Element platziert werden soll.'
Bezogen auf das zuvor angeklickte Bezugselement kann man kann die Positionierung des neuen Elementes an jeder beliebigen Seite durchgeführt werden.
Hinweis: Das Element, an das positioniert werden soll, muss zuvor mit der Maus aktiviert (angeklickt) werden und anschließend wird mit Mausklick direkt neben oder in das Element bestimmt, wo das Element platziert wird. (Abstand des Mausklicks neben das Element max. 5 mm).
Positionierbeispiel an Wand:

Richtig Falsch
Positionierbeipiele an vorhandenes Element:

Die Pfeile zeigen jeweils den Klickpunkt an, wo das Element bezogen auf die ausgewählte Wand oder Element platziert wird.
Um die Positionierung abzuschließen, muss entweder die Enter (Return)-Taste gedrückt werden
oder der grüne MP-Schalter deaktiviert werden

oder ein weiteres Element eingegeben werden.
Im Gegensatz zur automatischen Positionierung kann mit dieser Einstellung sofort nach Eingabe eines Elementes auch gegen die Planungsrichtung geplant werden oder das Element direkt an eine andere Wand platziert werden.
Mit einem „Rechtsklick“ auf das „MP Symbol“
erhalten Sie zudem das „Schnellstart Menü“ der Positionierung.

In Version 2016 gibt es eine weitere Möglichkeit der Positionierung:
Positionierung im Grundriss über zwei Punkte:
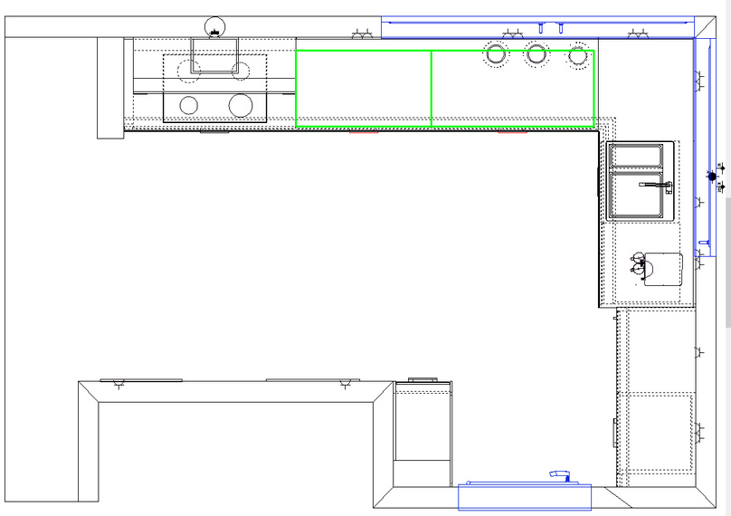
1. Ein oder mehrere Objekte auswählen:

2. Auf den Schalter MP drücken:![]()

Es wird ein Linienzug (Umriss der selektierten Elemente)in den vorhandenen Grundriss gezeichnet:
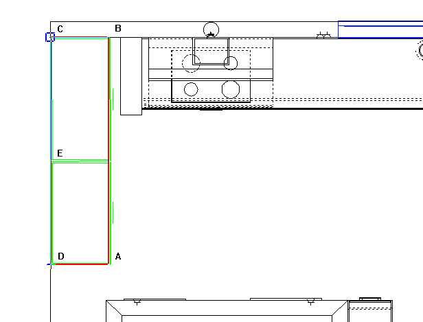
Der "Positionierpunkt" (in diesem Fall "A") ist gekennzeichnet und "hängt" an der Maus - durch bewegen der Maus verschiebt sich der eingezeichnete Linienzug.
Wollen Sie einen anderen Punkt als Positionierpunkt, so geben Sie einfach mit der Tastatur den entsprechenden Buchstaben ein:

so sieht das Bild aus, wenn Sie "C" gedrückt haben - nun kann Punkt "C" auf einen Referenzpunkt in der Planung gesetzt werden.
Sie können den nächsten Positionierpunkt auch durch drücken der Leertaste auswählen. Bei jedem Druck auf die Leertaste springt der Positionierpunkt zum nächsten Buchstaben.
Wenn man nun in diesem Beispiel die linke obere Ecke der Planung auswählt und diesen Punkt durch Mausklick bestätigt, kann die Planung noch entsprechend gedreht werden.
Hinweis: Durch Drücken der Shift (= Großschreib) - Taste und gleichzeitigem Drücken der Leer-Taste kommt man wieder in den "Positioniermodus" zurück, Sie können dann den Linienzug neu platzieren.
Nach der Platzierung kann man den Linienzug noch drehen

Im Beispiel wurde der Richtungspunkt "D" ausgewählt. (der Drehpunkt "C" ist nun fixiert) Das angezeigte Kreuz hängt jetzt an der Maus, die Linie C-D zeigt in Richtung auf das Kreuz.
Wenn Sie nun einfach das Kreuz auf die linke untere Ecke des Grundrisses setzen und klicken, werden die Elemente wirklich verschoben..
Auch hier können Sie jederzeit noch den Richtungspunkt durch drücken des entsprechenden Buchstaben ändern - wenn Sie die Elemente z.B. an der rechten Wand neben Punkt B ausrichten wollen, so drücken Sie "B" und bewegen das Kreuz auf die Ecke dieser Wand.
Bis zu diesem Punkt können Sie den das Verschieben noch immer durch drücken der Escape- Taste (Esc) asbbrechen.
Sie können selbstverständlich auch nach dem Verschieben die Aktion durch "undo" zurücksetzen.